Дмитрівська (Кір.обл) ОТГ, Суспільство
Дмитрівська рада схвалила детальний план забудови території
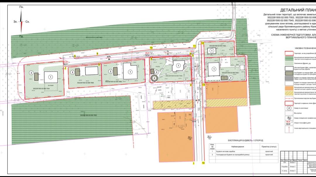
Відбулося важливе засідання архітектурно-містобудівної ради при відділі містобудування, архітектури, житлово-комунального господарства, благоустрою та цивільного захисту Дмитрівської сільської ради. Головним питанням розгляду став проєкт містобудівної документації, що стосується детального планування території. Ця документація охоплює низку земельних ділянок з кадастровими номерами: 3522281500:02:000:7002, 3522281500:02:006:7669, 3522281500:02:006:7668, 3522281500:02:000:7545, 3522281500:02:006:7626, 3522281500:02:000:7544. Особлива увага була приділена зоні впливу цих ділянок, яка розташована в адміністративних межах Дмитрівської сільської ради Кропивницького району Кіровоградської області, поза межами населеного пункту. Метою розробки детального плану території є уточнення параметрів майбутньої забудови.
Проєкт містобудівної документації був розроблений ФОП Литвин Григорій Миколайович. Це важливий крок у плануванні розвитку території, який допоможе визначити оптимальні рішення для забудови, враховуючи всі необхідні норми та вимоги.
За результатами ретельного розгляду, проєкт містобудівної документації отримав позитивну оцінку та був рекомендований до затвердження. Це відкриває шлях до подальшої реалізації запланованих містобудівних рішень, спрямованих на покращення інфраструктури та розвитку громади. Важливість такого планування полягає у створенні чіткого бачення майбутньої забудови, що сприятиме сталому розвитку регіону. Минулі засідання архітектурно-містобудівної ради завжди проходили з акцентом на потреби громади, і цей випадок не став винятком. Детальний план території є ключовим документом для забезпечення ефективного використання земельних ресурсів та створення комфортного середовища для проживання.
Затвердження цього проєкту містобудівної документації сприятиме прозорості процесів, пов’язаних із землеустроєм та забудовою, а також забезпечить основу для прийняття зважених рішень щодо розвитку території. Містобудівна документація є фундаментом для будь-якого успішного містобудівного проєкту, а її якісна розробка – запорука майбутнього успіху. ФОП Литвин Григорій Миколайович виконав свою роботу професійно, що дозволило раді дати позитивну рекомендацію.


